/Address Jardins
Localizado entre duas ruas de caráter distinto, a R: José Maria Lisboa, mais residencial e arborizada e a R: Pamplona que vem se consolidando como um importante eixo de comércios e serviços, no bairro dos Jardins, o empreendimento foi implantado em uma área de 1022m².
A torre residencial de 13 andares tem sua identidade marcada pelas linhas sinuosas nas varandas, solução que possibilita uma continuidade entre as fachadas da esquina, além de trazer uma sensação de amplitude e verticalidade. O prédio é uma composição dos elementos curvos, em concreto aparente, e caixas que abrigam o programa dos apartamentos, marcadas grandes caixilhos. Jardineiras foram implantadas ao longo dos terraços e ao se escalonar nas fachadas integram o projeto à massa arbórea da rua.
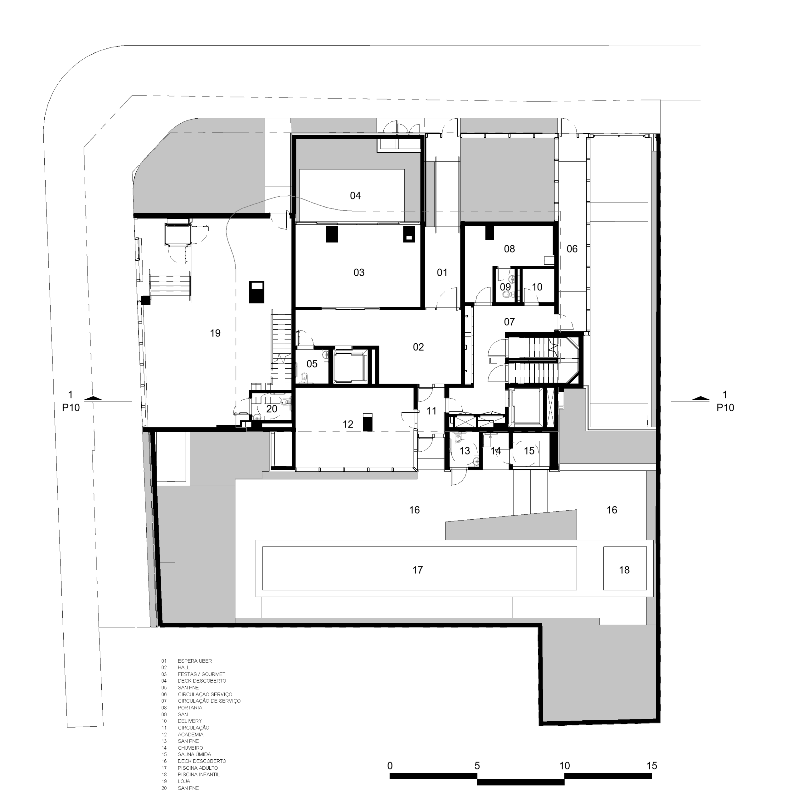
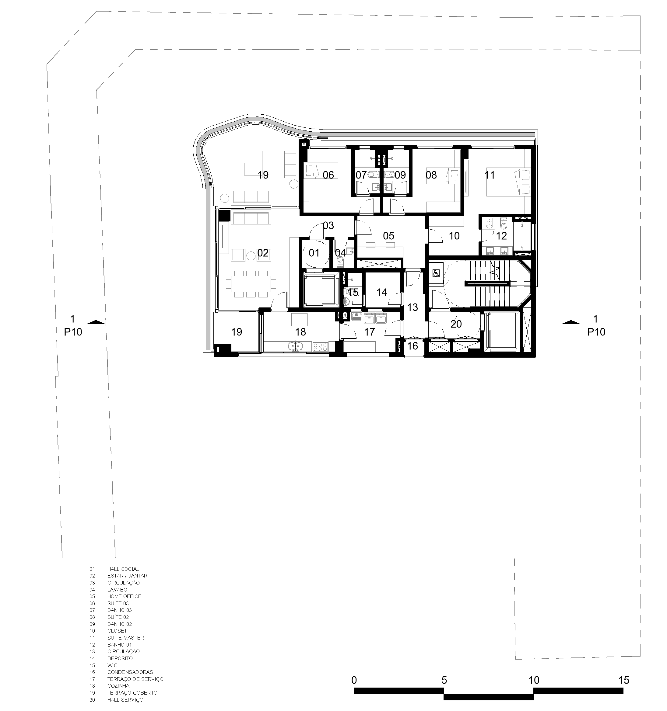
A disposição interna dos apartamentos busca a melhor situação de insolação e vistas. Os dormitórios aproveitam o sol da manhã, enquanto a área social desfruta do visual na esquina, o que possibilita aos moradores um contato direto com o eixo de árvores na rua José Maria Lisboa. A área de lazer residencial está no próprio térreo, contém piscina, sauna, academia e jardins.
Junto à rua Pamplona, o empreendimento possui uma loja que se integra à identidade da torre através das empenas em concreto e amplos caixilhos. As calçadas são ampliadas e abrigam generosos canteiros permeáveis que através do paisagismo proporcionam um agradável caminhar aos pedestres.
| Local: São Paulo, SP |
| Projeto: 2022 |
| Área do terreno: 1.022 m² |
| Área construída: 5.193 m² |
| Pavimentos: 13 |
| Área Apartamentos: 183 m² |
| Altura: 45 m |
| Tipo: Residencial |













Address Jardins
Teçá | Alma Brasileira
JFL 125
Urman | Tru by Hilton
Helbor Jardins
Park View
Apartments San Paolo
Ayra Vila Madalena
For You Moema
Almirante Riviera